Services That Prevent Problems
Comprehensive reviews identify conflicts before construction begins.
Core Offerings Built Around Constructability
Each service is designed to identify issues early and support improved construction outcomes.
Constructability Review
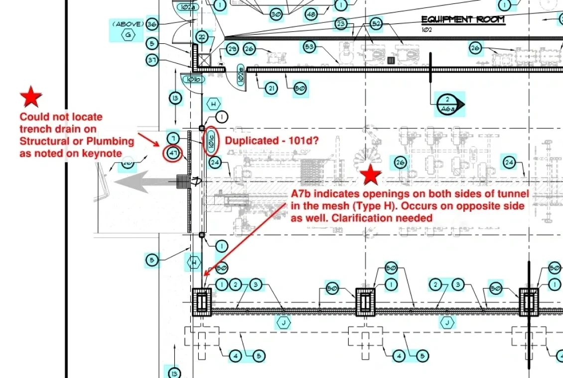
A structured analysis of drawings to identify coordination gaps, conflicting details, missing information, and constructability risks before construction begins.
Common Issues Identified During Reviews
Conflicts between architectural and engineering documents
Missing details that generate RFIs onsite
Inconsistencies affecting sequencing and installation
Design elements that impact field execution
Request Service Scope Information
Get clarity on what our constructability review and management support services include and how they fit your project timeline. We’ll outline scope, deliverables, and next steps.